网站导航

斯德博STOBER减速机

当前位置:首页 > 产品展示 > 斯德博STOBER减速机

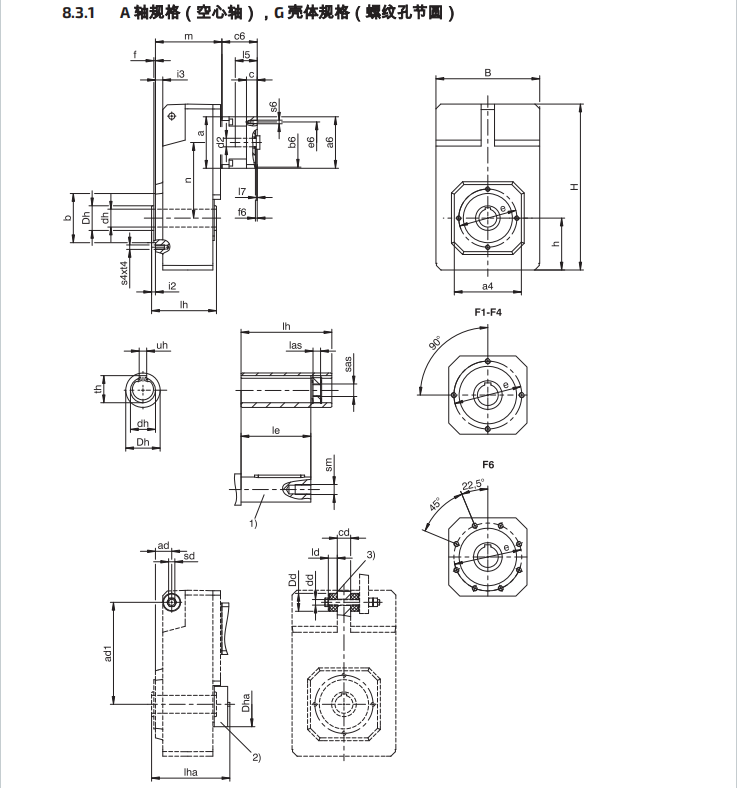
F系列

产品时间:2023-11-29 09:46:49

简要描述:

F Series Flat gear unit housing with large shaft-centre distance. Helical gearing. Two backlash versions. Hollow or solid shaft. Short motor adapter length. Easy and secure motor mounting. Can be attached to almost any make of servo motor.

推荐产品

如果您有任何问题,请跟我们联系!

联系我们

在线客服 联系方式 二维码

服务热线

021-5470-0616

扫一扫,关注我们